中野区中央1丁目のマンション 1階
☆新築☆ 敷金礼金が不要なペット可物件。丸ノ内線・大江戸線『中野坂上』徒歩2分の好アクセス!スギドラッグ 中野坂上店まで徒歩3分にあるので、体調が悪くなっても安心。宅配ボックスがあるので家に不在の場合でも荷物を受け取ることができます。防犯カメラ付きのマンションです。丸ノ内線中野坂上付近のことなら、いつでも
- 賃料
- 22.9万円
- 間取り
- 1LDK
- 専有面積
- 40.03㎡
- 所在階
- 1階
- 管理費・共益費
- 18,000円
- 敷金
- 0ヶ月
- 礼金
- 0ヶ月
-
情報の見方
担当者のコメント real estate consultantkomatsu

- ☆新築☆ 敷金礼金が不要なペット可物件。エントランスが顔認証で鍵を出す手間が省けます♪丸ノ内線・大江戸線『中野坂上』徒歩2分の好アクセス!スギドラッグ 中野坂上店まで徒歩3分にあるので、体調が悪くなっても安心。宅配ボックスがあるので家に不在の場合でも荷物を受け取ることができます。こちらは防犯カメラ付きのマンションです。丸ノ内線中野坂上付近のことなら、いつでも
にてご連絡下さい。丁寧にお答え致します。
ポイント・特徴
物件概要
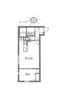
【マンション】 物件番号:99469254 情報更新日:2026年02月09日 次回更新予定日:2026年02月23日所在地 東京都中野区中央1丁目 交通 間取り/詳細 1LDK
LDK 12.8帖/洋室 5.0帖面積/バルコニー面積 40.03㎡/- 賃料 22.9万円 管理費・共益費 18,000円 敷金/礼金/保証金 0ヶ月/0ヶ月/- 償却/敷引 -/- 更新料 1ヶ月(新賃料) 敷金積み増し - 権利金/雑費 -/- 駐車場/月額料金 近隣(1台)/38,500円 (税込) 保険加入/料金 有/20,000円 保険名/保険期間 火災保険/2年 保証人代行義務 - 保証会社 - 保証会社詳細 - 向き 西 築年月(築年数) 2025年 11月 (新築) 契約期間 2年 種別/構造 マンション/鉄筋コンクリート 部屋/所在階/階建 0101/ 1階/ 3階建 総戸数 - 現況/入居可能日 完成済み/即時 特優賃 - 取引態様/賃貸区分 一般媒介/一般 物件番号 99469254 取引条件の有効期限 2026年02月23日 設備条件 - ペット相談
- ペット飼育可
- 2人入居可
- 女性向け
- 新婚さん向け
- 室内洗濯機置場
- フローリング
- 都市ガス
- 公営水道
- 公共下水
- 24時間換気システム
- 電気有
- 照明器具付き
- 駐輪場
- 敷地内ごみ置き場
- ガスコンロ
- コンロ2口以上
- システムキッチン
- 対面式キッチン
- コンロ3口
- カウンターキッチン
- バス・トイレ別
- 浴室乾燥機
- 温水洗浄便座
- 洗面台
- シャワー
- 独立洗面台
- エアコン
- シューズボックス
- CS
- BS
- 光ファイバー
- ネット使用料無料
- オートロック
- TVモニタ付インターホン
- 宅配ボックス
- 防犯カメラ
備考 初期費用分割払いサービス紹介可(詳細はお問い合わせください)
※ペット飼育(小型犬または猫1匹まで)礼金1ヶ月積み増し
※短期解約違約金:1年未満1ヶ月条件(その他) プレミアデスク(2年):1万6,500円 室内清掃費用:7万9,640円 ※ペット飼育(小型犬または猫1匹まで)礼金1ヶ月積み増し 取扱会社 - アクセス株式会社
- 東京都中野区東中野5丁目3-1
- TEL:03-6908-9671
- 東京都知事 (2) 第99416号
- 公益社団法人全日本不動産協会・公益社団法人首都圏不動産公正取引協議会
※地図上に表示される物件の位置は付近住所に所在することを表すものであり、実際の物件所在地とは異なる場合がございます。
物件お問い合わせ


















